Landes- und Sprachauswahl
  • Deutschland (DE)
  • France (FR)
  • Belgique (BE)
  • Nederland (NL)
  • Danmark (DK)
  • Lëtzebuerg (LU)
  • Schweiz (CH)
  • Österreich (AT)
  • International
  • Sprache
  • Suche
  • Startseite – BIRCO
  • Entwässerungsrinnen
    • Tiefbau ohne WHG
      • BIRCOsir – kleine Nennweiten
      • BIRCO Blindenleitsysteme
      • BIRCOsir Gleisentwässerung
      • BIRCOprofil
    • Tiefbau mit WHG
      • BIRCOsir – große Nennweiten
      • BIRCOmassiv
      • BIRCOmax-i
      • BIRCOprotect
      • BIRCOsolid Kastenrinne
      • BIRCOsolid Schlitzrinne
      • BIRCOport
      • BIRCOdicht
    • Galabau
      • BIRCOlight - Eine Familie, vier Lösungen
      • BIRCOplus
      • BIRCOslim®
      • BIRCOparksafe®
      • BIRCOschlitzaufsätze
      • BIRCOtopline
      • BIRCOprofil
      • BIRCOstandard
  • Punktentwässerung
    • Tiefbau ohne WHG
      • BIRCOsir Punktentwässerung
    • Tiefbau mit WHG
      • BIRCOdicht Punktentwässerung
    • Galabau
      • BIRCOplus Punktentwässerungen
      • BIRCOlight Punktentwässerung
      • BIRCOtopline Aufsatzelemente
  • Wasserbewirtschaftung
    • Behandlung
      • BIRCOpur NW 320®
      • BIRCOprime® evo
      • BIRCOhydropoint®
      • BIRCOsed NW 320®
      • BIRCOprime®
      • BIRCOhydroshark
    • Versickerung
      • BIRCOpur NW 320
      • BIRCO Rigolentunnel von StormTech®
      • BIRCOrainblock®
    • Retention
      • BIRCOmax-i
      • BIRCO Rigolentunnel von StormTech®
      • BIRCOrainblock®
      • BIRCO Schächte
  • Kabelkanäle
    • Produkte
      • BIRCOcanal Versorgung
      • BIRCOcanal Elektroladesäulen
  • Anwendungen
    • Verkehrswege l
      • Verkehrswege
      • Industriegebiete
      • Gewerbegebiete
      • Logistikflächen
      • Hallenbau
    • Verkehrswege ll
      • Chemische Industrie
      • Flughäfen Airside
      • Häfen
      • Wohn-/Bürogebäude
      • Tiefgaragen
    • Verkehrswege lll
      • Hochgaragen
      • Bahnhöfe
      • Garten- und Landschaftsbau
      • Städtebau
      • Private Flächen
  • Digital-Tools
    • Digital-Tools
      • Interaktives Grundstück
      • Schnellplaner für Regenwassermanagement
      • BIRCO BIM Tool
      • Ausschreibungsmanager
  • Projektmanagement & Services
    • Projektmanagement & Service I
      • Regenwassermanagement
      • Werksservice, Schnitte, Bohrungen
      • Planung, Beratung und Berechnung
    • Projektmanagement & Service II
      • Baustellenbegleitung
      • Logistikplanung
    • Projektmanagement & Service III
      • BIRCOcolor
      • BIRCOeasyclean
      • Verlegehilfen
  • Unternehmen
    • Unternehmen
      • BIRCO im Wandel
      • Jobs & Karriere
      • Standorte
      • Nachhaltigkeit & Umweltschutz
      • Soziales Engagement
    • Aktuell
      • Objektberichte
      • Tagungen und Messen
      • BAUTALK by BIRCOimpuls
      • E-Newsletter
      • News & Pressemeldungen
  • Downloads
    • Downloads
      • Kataloge & Broschüren
      • Preislisten
      • Verfugungshinweise
      • Referenzdatenblätter
      • Zertifikate
      • Wartungsanleitungen
      • Leistungserklärungen
      • BIRCO Logo
    • Technische Zeichnungen
      • BIRCOsir - kleine Nennweiten
      • BIRCOsir - grosse Nennweiten
      • BIRCOlight
      • BIRCOmax-i
    • BIRCO Einbauanleitungen
      • BIRCOsir - kleine Nennweiten
      • BIRCO Blindenleitsystem
      • BIRCOsir - große Nennweiten
      • BIRCOsir NW 1000
      • BIRCOmassiv
      • BIRCOmax-i®/BIRCOprime®/BIRCOprime® evo
      • BIRCOprotect
      • BIRCOsolid
      • BIRCOdicht
      • BIRCOplus
      • BIRCOslim®
      • BIRCOlight®
      • BIRCOlight triloc®
      • BIRCOlight®_Fassadenentwässerung
      • BIRCOparksafe®
      • BIRCOschlitzaufsätze
      • BIRCOtopline®
      • BIRCOprofil
      • BIRCOpur NW 320
      • BIRCOhydropoint
      • BIRCOsed NW 320
      • BIRCOhydroshark
      • BIRCO Rigolentunnel von StormTech®
      • BIRCOrainblock
      • BIRCOcanal
  • FAQ
  • Glossar
  • DIN-Belastungsklassen
  • Ansprechpartnersuche
  • Kontakt
  • Anfahrt
Planung Einbau Berechnung Verlegeplane Entwässerungssysteme
Service

Einbaubeispiele

  1. Sie sind hier:
    1. Downloads
    2. BIRCO Einbauanleitungen
    3. BIRCOlight triloc®

Downloads

  • Kataloge & Broschüren
  • Preislisten
  • Verfugungshinweise
  • Referenzdatenblätter
  • Zertifikate
  • Wartungsanleitungen
  • Leistungserklärungen
  • BIRCO Logo

Technische Zeichnungen

  • BIRCOsir - kleine Nennweiten
  • BIRCOsir - grosse Nennweiten
  • BIRCOlight
  • BIRCOmax-i

Einbauanleitungen

  • BIRCOsir - kleine Nennweiten
  • BIRCO Blindenleitsystem
  • BIRCOsir - große Nennweiten
  • BIRCOsir NW 1000
  • BIRCOmassiv
  • BIRCOmax-i®/BIRCOprime®/BIRCOprime® evo
  • BIRCOprotect
  • BIRCOsolid
  • BIRCOdicht
  • BIRCOplus
  • BIRCOslim®
  • BIRCOlight®
  • BIRCOlight triloc®
  • BIRCOlight®_Fassadenentwässerung
  • BIRCOparksafe®
  • BIRCOschlitzaufsätze
  • BIRCOtopline®
    • Breite 100
      • Rinnenelemente
      • Abdeckungen
      • Zubehör
    • Breite 130
      • Rinnenelement
      • Abdeckungen
      • Zubehör
    • Breite 160
      • Rinnenelemente
      • Abdeckungen
      • Zubehör
    • Breite 210
      • Rinnenelemente
      • Abdeckungen
      • Zubehör
    • Breite 250
      • Rinnenelemente
      • Abdeckungen
      • Zubehör
    • Aufsatzelemente 25/25
      • Aufsatzelemente
      • Abdeckungen
      • Zubehör
    • Aufsatzelemente 40/40
      • Aufsatzelemente
      • Abdeckungen
      • Zubehör
  • BIRCOprofil
  • BIRCOpur NW 320
  • BIRCOhydropoint
  • BIRCOsed NW 320
  • BIRCOhydroshark
  • BIRCO Rigolentunnel von StormTech®
  • BIRCOrainblock
  • BIRCOcanal

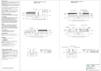
Einbau BIRCOlight triloc® als PDF und .dwg

Einbauanleitung BIRCOlight triloc® NW 100 / NW 150 / NW 200 AS / NW 300
Einbauanleitung BIRCOlight triloc® NW 100 / NW 150 / NW 200 AS / NW 300

[PDF, 349,71 KB ]

Download
dwg

Einbauanleitung BIRCOlight triloc® NW 100 / NW 150 / NW 200 AS / NW 300

BIRCOdirektkontakt+49 7221 5003 0

Unsere aktuellen Zeiten:
Mo–Do 7:30 - 17:00 Uhr
Freitag 7:30 - 14:00 Uhr

BIRCOnewsletter Jetzt abonnieren!

Zum kostenlosen Newsletter-Abo von BIRCO registrieren.

BIRCOsocials info@birco.de
  • facebook
  • twitter
  • YouTube
  • LinkedIn
  • Xing aufrufen
  • Instagram
  • Baufragen.de
  • Bauspot.de
  • heinze.de
  • Karriere
  • Anfahrt
  • DIN Belastungsklassen
  • Tagungen und Messen
  • Cookie-Einstellungen
  • FAQ
  • AGB
  • Impressum
  • Datenschutz
  • Meldestelle zum Hinweisgeberschutzgesetz
BIRCOchat